
Ramo: Residencial
Area: 650 ㎡
Servicio: Arquitectura - Diseño Interior
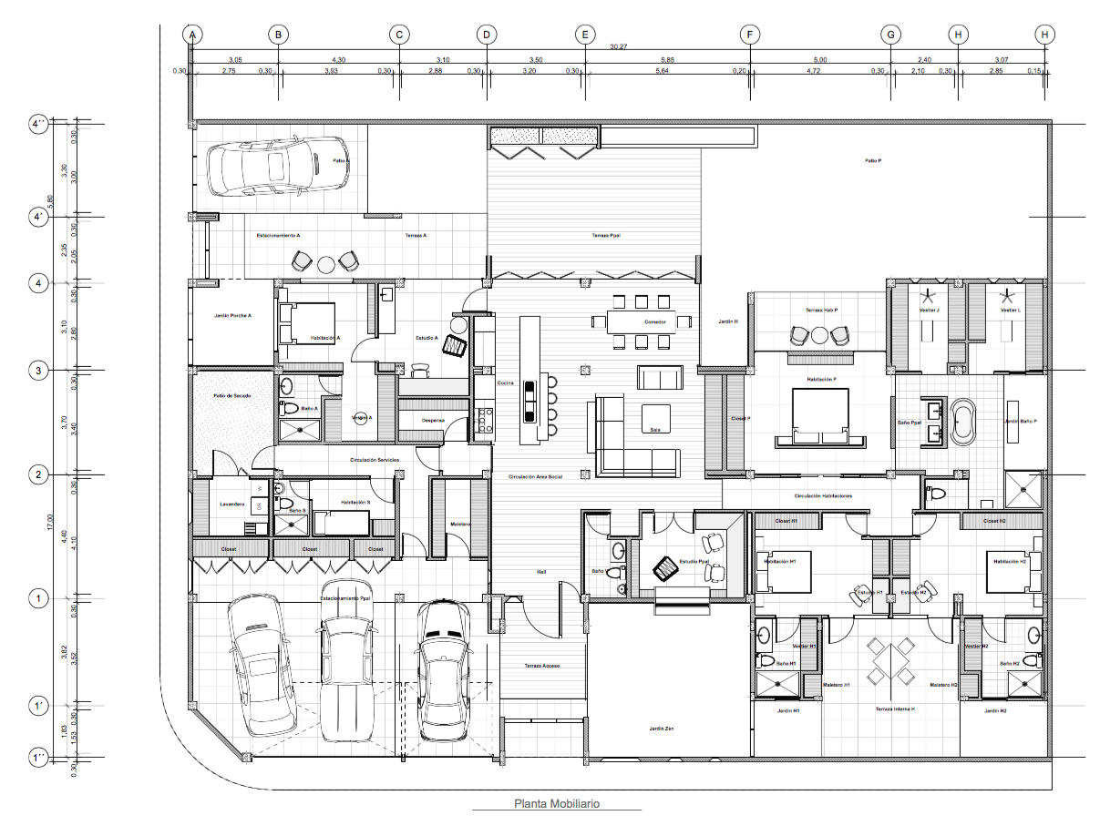
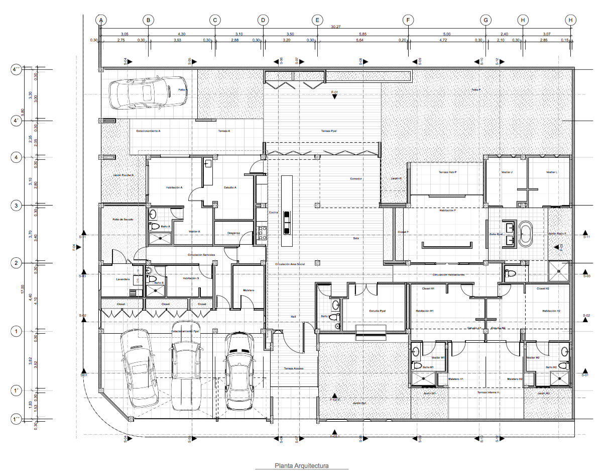
A solicitud de la familia Sanz realizamos este proyecto de remodelación de una vivienda construida originalmente en los años ochenta y que a razón de los cambios en la estructura familiar requería modificaciones para su mejor funcionamiento así como tener una imagen más adecuada a la identidad de la generación de relevo que ahora dirige la vivineda.






[wpforms id=”12237″]