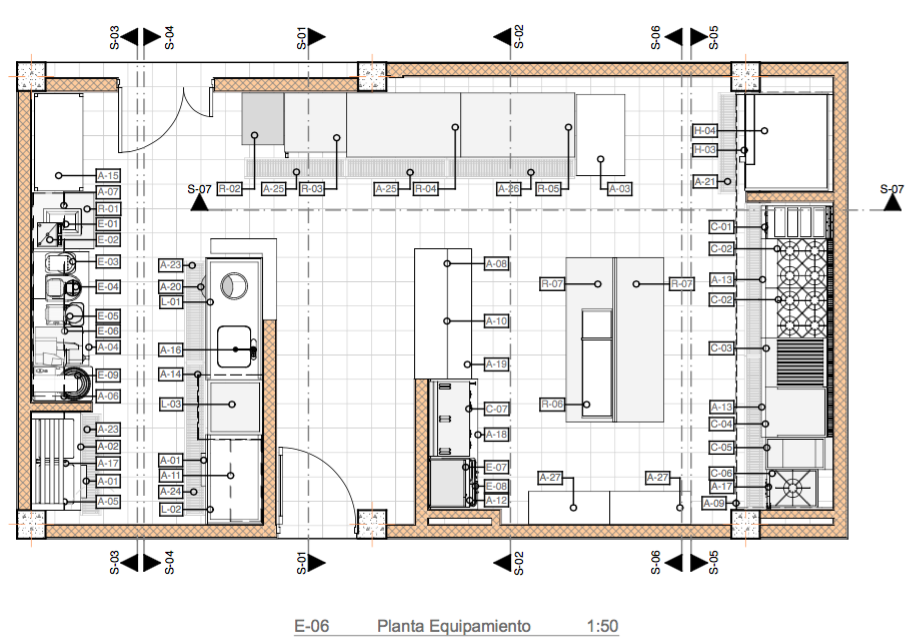
Ramo: Hotel Ejecutivo
Area: 59,13 ㎡ en Cocina
Capacidad: 80 Comensales
Servicio: Proyecto de Equipamiento
Restaurant para hotel ejecutivo de 56 habitaciones, ubicado en el corazón del Oeste de la ciudad de Barquisimeto, requiere de nuestros servicios de asesoría para equipar el Restaurant y Bar del hotel.
Planteamiento de equipamiento para cocina de restaurant que responde a una propuesta de menú basado en comida regional en fusión con nuevas tendencias. Una vez más se nos plantea el reto del espacio pequeño disponible para el desarrollo de la cocina del Restaurant, como ya es costumbre logramos sortear las dificultades de espacio apoyándonos en un potente equipamiento con bajas exigencias de espacio así como en una correcta distribución de los distintos ambitos operativos de la cocina






[wpforms id=”12237″]