Ramo: Restaurant
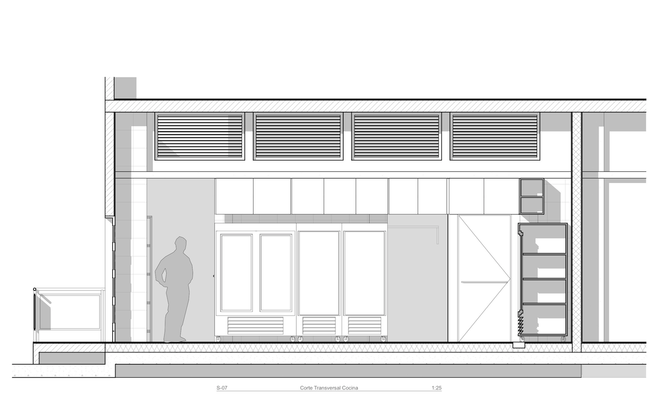
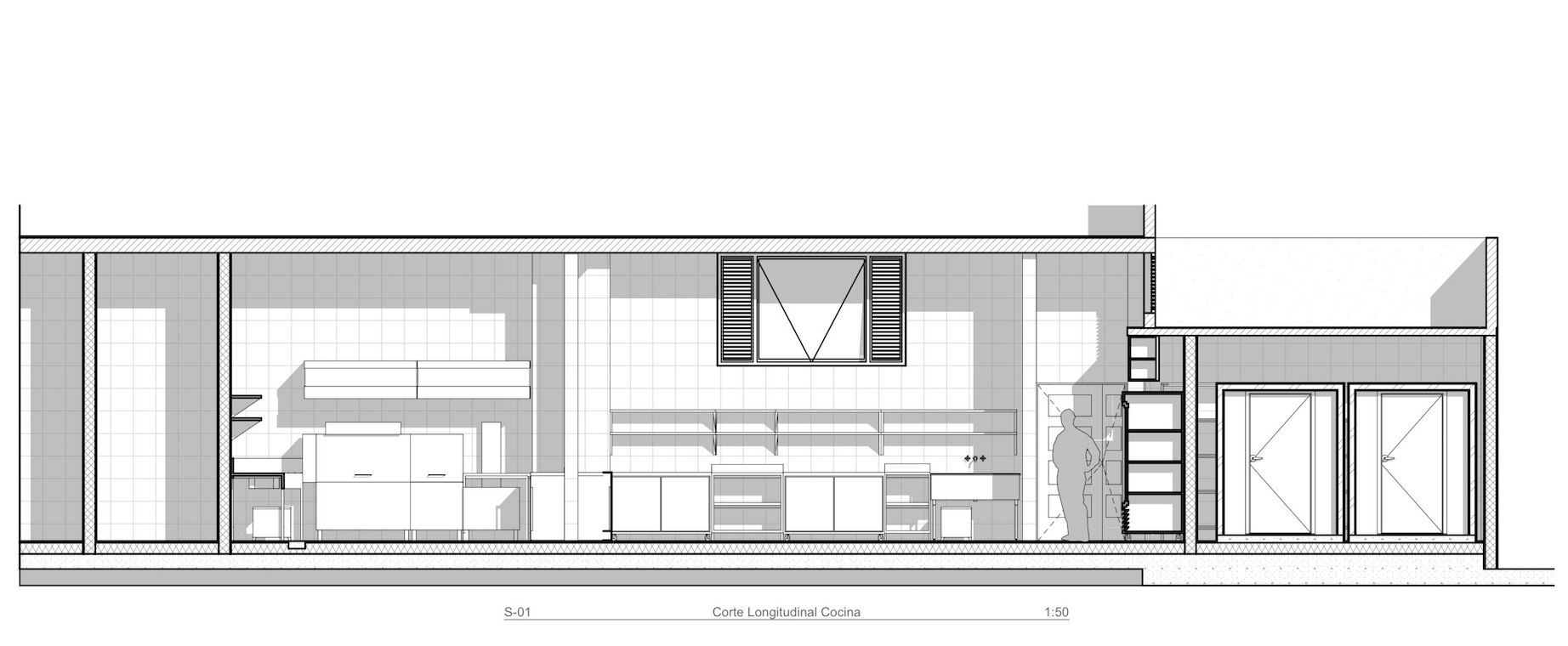
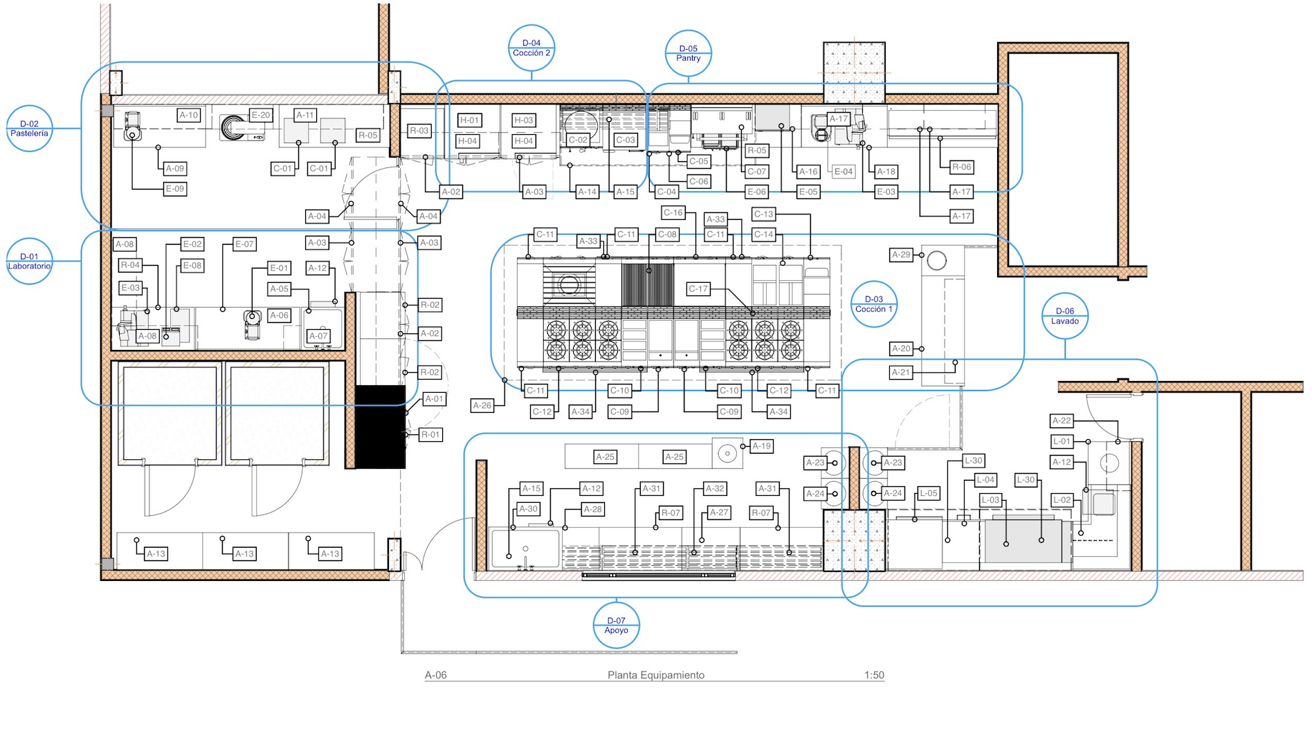
Area: 127 ㎡ en Cocina
Capacidad: 150 Comensales - 137 Habitaciones
Servicio: Proyecto de Equipamiento
Proyecto de Equipamiento de Restaurant de alta gama para un exigente cliente que se enorgullece de ostentar la mejor oferta culinaria del Hotel Jirahara de la ciudad de Barquisimeto.
- Incrementar la velocidad de Respuesta
- Incrementar la capacidad de producción en Volumen
- Ampliar la Oferta Gastronómica
- Elevar la experiencia de su distinguida clientela
fueron las demandas del cliente para este Proyecto.Para alcanzar los objetivos se propuso:
- Ampliación del espacio; Incrementar el área de estudio asignada de 87,00 ㎡ a 127 ㎡ disponiendo de 40 ㎡ de área que actualmente corresponde al salón y la barra de bebidas.
- Sustitución del equipamiento actual por equipos de mayor potencia que incrementen la velocidad de respuesta.
- Creación de ámbitos definidos y autónomos para Almacenaje, Laboratorio y Pastelería que permitan mejorar los controles de calidad e inventario, así como prevenir los riesgos de contaminación cruzada.
- Distribución adecuada de equipos que optimice los flujos internos de personal y producción.
Planos
Renders






[wpforms id=”12237″]