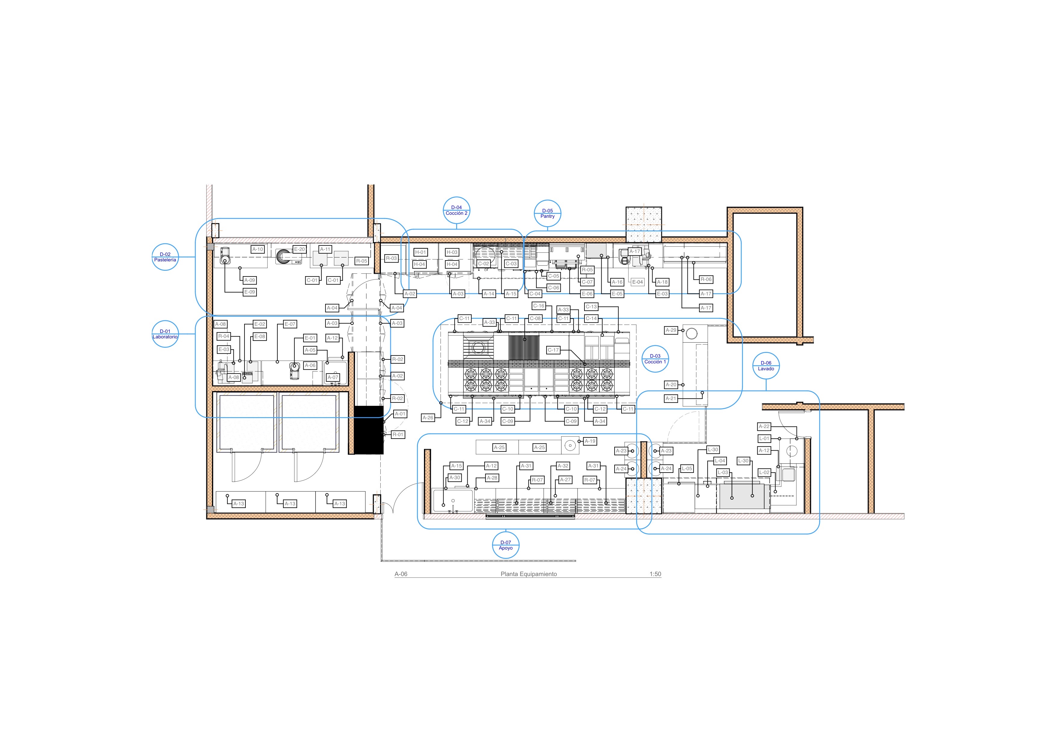
Ramo: Restaurant
Area: 127 ㎡ en Cocina
Capacidad: 150 Comensales - 137 Habitaciones
Servicio: Proyecto de Equipamiento
Equipamiento de alta gama para este exigente cliente que se enorgullece de ostentar la mejor oferta culinaria de la ciudad de Barquisimeto. Aumentar la cantidad y potencia de los equipos, para incrementar la velocidad y el volumen de respuesta. Crear nuevos ámbitos en la cocina para ampliar la oferta gastronómica y potenciar así la experiencia gastronómica de sus comensales.
Restaurant Ubicado en el Hotel Jirahara, Barquisimeto, Edo. Lara
https://instagram.com/martinisbistro_/






[wpforms id=”12237″]