
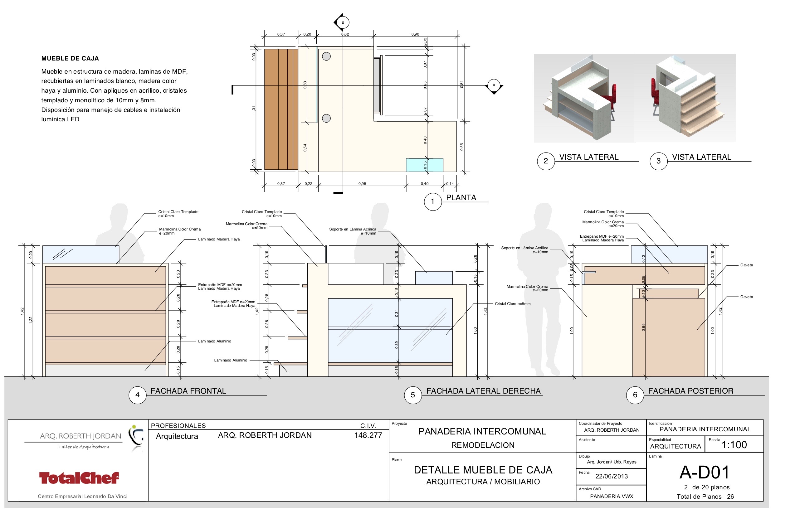
Ramo: Panadería
Area: 480 ㎡
Capacidad: 50 Comensales
Servicio: Proyecto Espacial - Proyecto Equipamiento - Interiorismo
Desarrollo de Proyecto que comprende: Restaurant
Heladería
Barra de Bebidas
Café
Panadería
Pastelería - Postres Charcutería
Mini Market de auto servicio Area de Cajas
Todo integrado utilizando las más finas líneas italianas de Vitrinas y Exhibición
Marca: iFi
Lineas: Aktiva - Tonda - Cloud - Bistró - Mix
Proveedor: TotalChef







[wpforms id=”12237″]