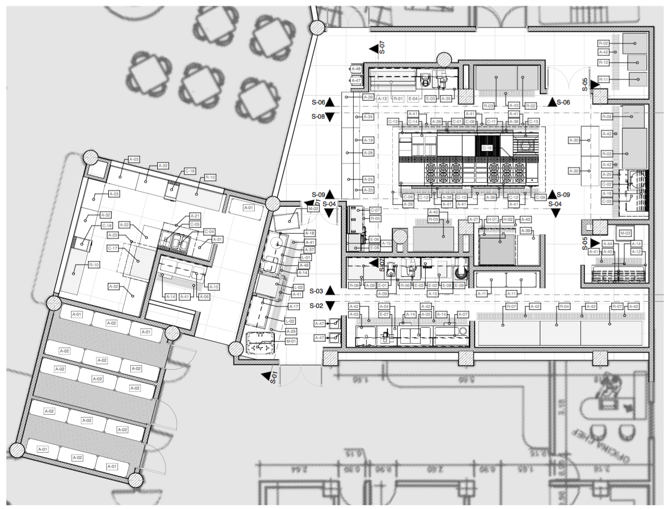
Ramo: Restaurant - Hotel Escuela
Area: 210 ㎡
Capacidad: 150 Comensales
Servicio: Arquitectura Cocina – Equipamiento
Ubicado en la conocida Ciudad Flamingo, destino turístico por excelencia en el Estado Falcón, se nos asigna una cocina de altísimos requerimientos para atender Restaurant, Resort y Escuela culinaria.
Las características de consumo en esta zona netamente turística se destaca por la altísima demanda concentrada en fechas particulares, fechas para las que los prestadores de servicio se apertrechan preparan para tratar de brindar el mejor servicio a los temporadistas aún en el momento de máxima demanda. La capacidad de almacenaje, Pre producción y Refrigeración de porcionado son la clave del éxito para un buen rendimiento al momento de la faena en alta demanda.
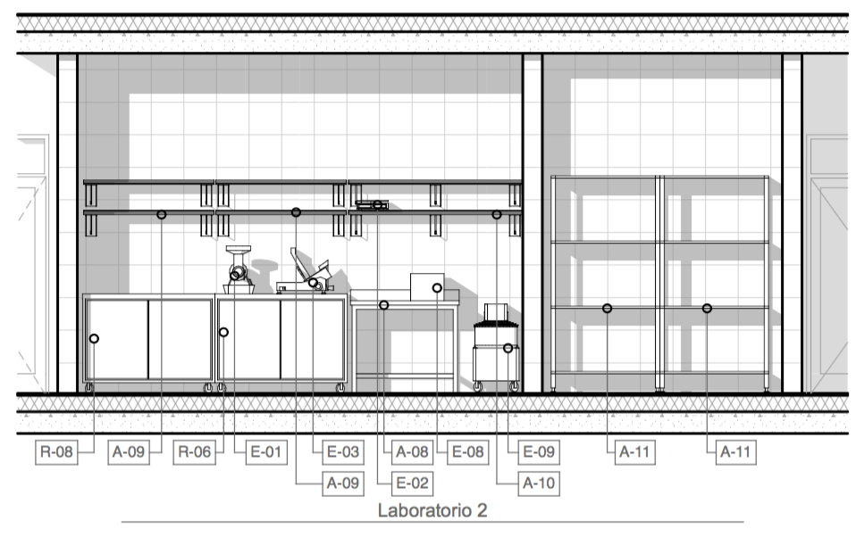
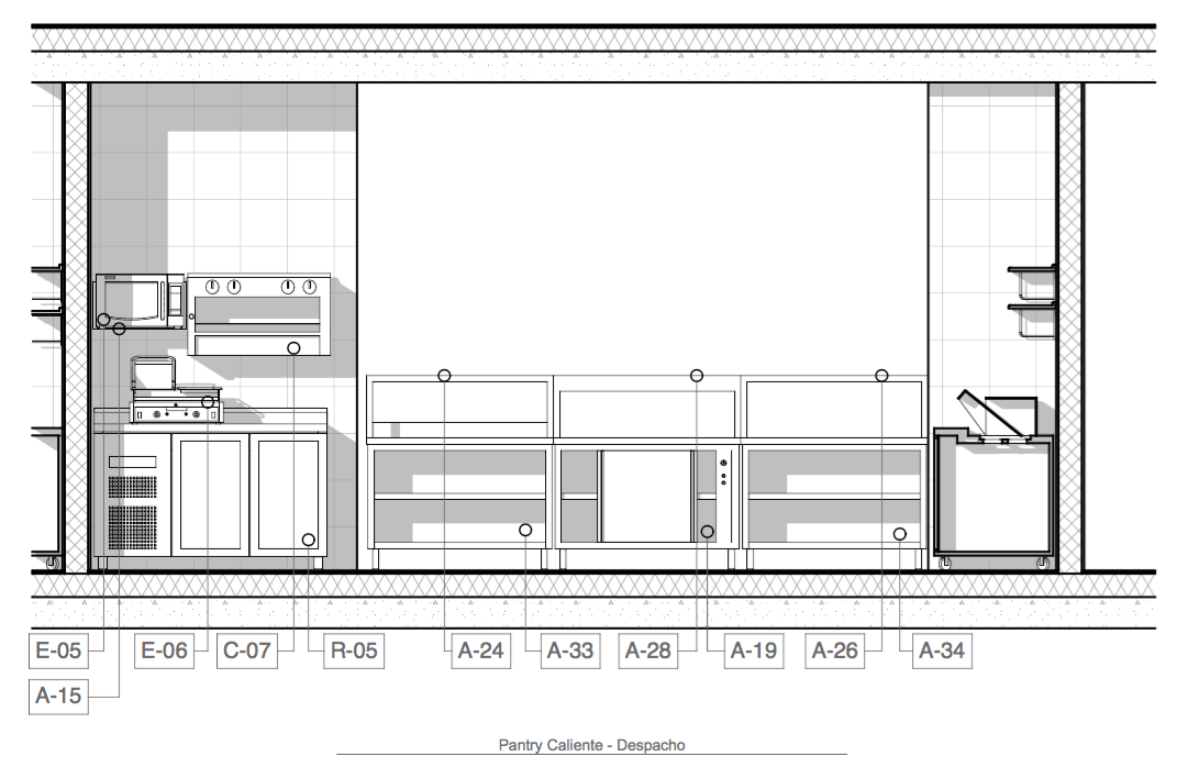
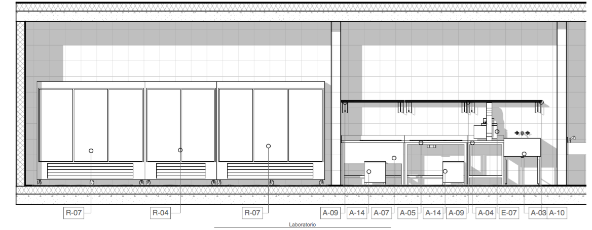
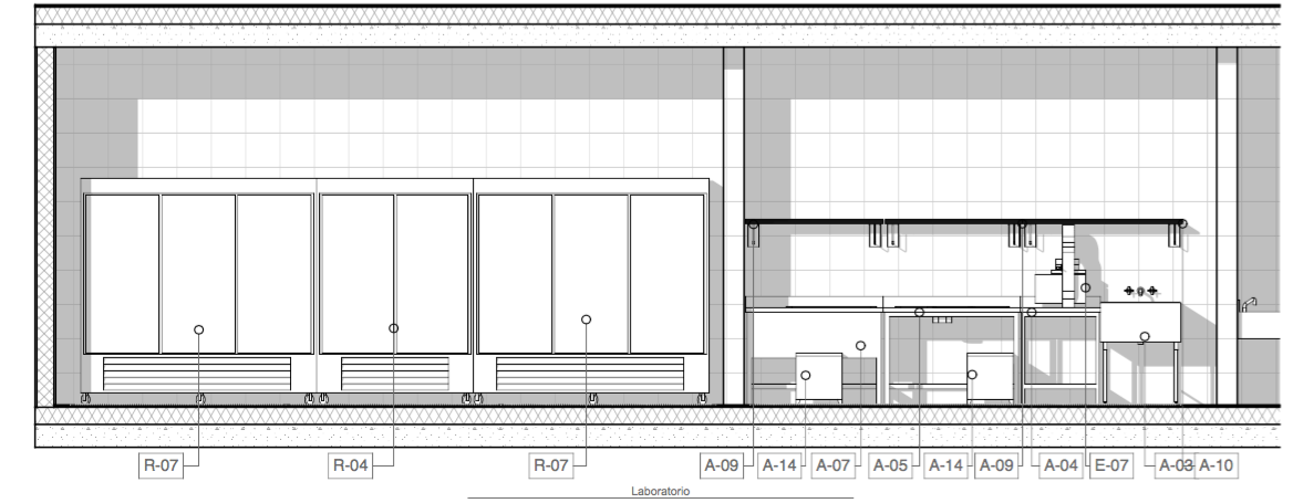
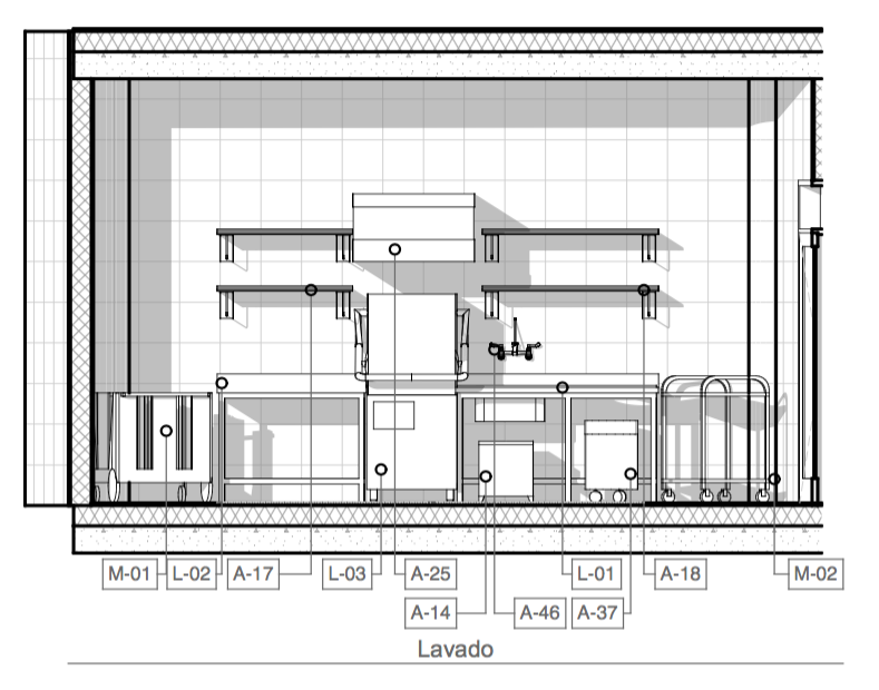
Logramos disponer espacios operativos, que cumplen con la Norma Sanitaria vigente y que responde a su vez a un menú de amplia gama que ofrece desde Sandwiches, ensaladas, Comida del mar, Pastas hasta carnes al Grill.
El exigente uso y las condiciones de alta salinidad en el ambiente nos lleva a seleccionar equipos de la marca Fagor, marca de alta gama que cuenta con certificaciones internacionales que respaldan sus indicadores de rendimiento, eficiencia, resistencia al uso intenso y a condiciones climáticas adversas.






[wpforms id=”12237″]