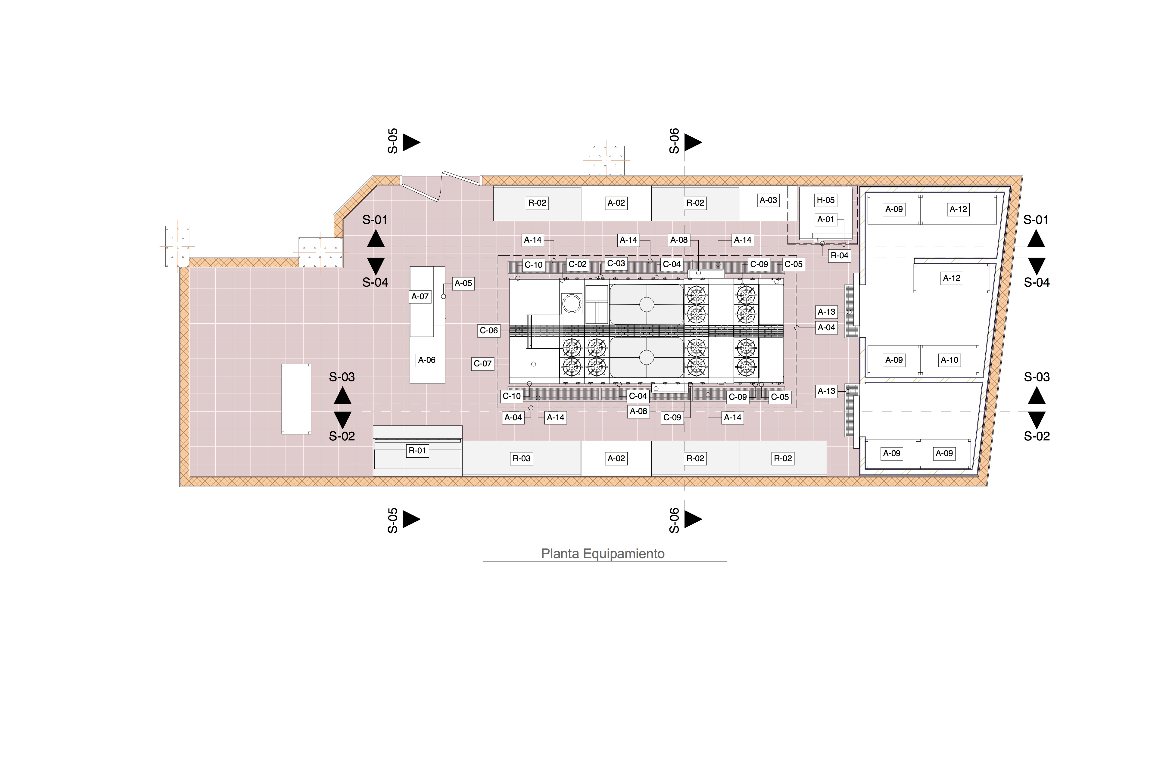
Ramo: Restaurant de Comida Asiática
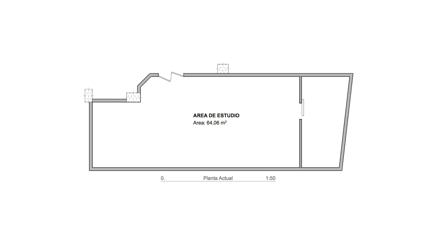
Area: 64㎡ en Cocina
Capacidad: 80 Comensales
Servicio: Proyecto de Equipamiento
Proyecto desarrollado bajo el lineamiento de la Chef Vanessa Barón, quien conoce al detalle su operación por lo que fue muy precisa con su solicitud, estamos a la altura de tales demandas y manejamos el equipamiento que se adapta perfectamente a ellas.
Como ya es habitual, nos encontramos con un espacio de dimensiones comprometidas, para lo cual nos valemos de diseño y de la marca Fagor, una marca 360, que ofrece en su Gama 900 la robustez, dimensiones, potencia y diseño acordes con la expectativa del cliente. La demanda particular de este cliente se refiere al Tope Francés para la cocina, muy usado en Europa y de muy poca presencia en nuestro país, también tenemos la presencia del Wok de Inducción incorporado a la isla en la que se encuentra el resto del equipamiento tradicional.






[wpforms id=”12237″]