Ramo: Comercio
Area: 105 m2
Servicio: Arquitectura, Equipamiento, Interiorismo.
Proyecto para la nueva sala de exposición de productode de TotalChef, primera empresa en Venezuela en especializarse en el equipamiento de restaurantes.
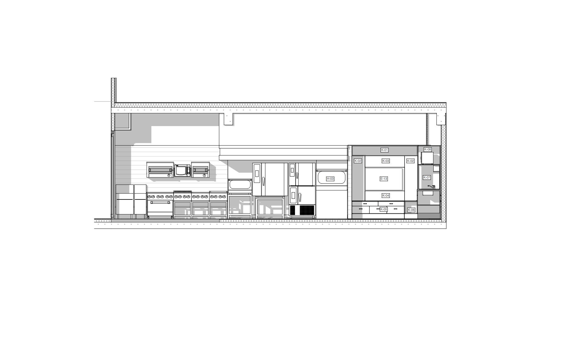
TotalChef maneja como estrategia comercial un Concepto 360 que implica la cobertura total del equipamiento necesario para el funcionamiento de Restaurantes, Cocción Horizontal, Cocción Vertical, Refrigeración, Lavado Automático y Preparación Dinámica. Esta oferta global se refuerza con el acompañamiento al cliente en servicios de Pre-Venta, Venta, Post-Venta y Formación.
Esta amplitud en la oferta en productos y servicios se ha alcanzado respaldado en alianzas con importantes fábricas de alcance global que permiten responder en tiempo y forma a todos los requerimientos del mercado local de Restaurantes.
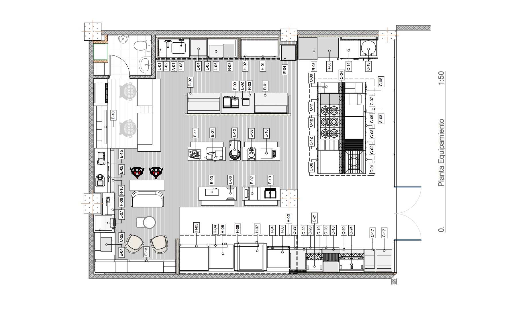
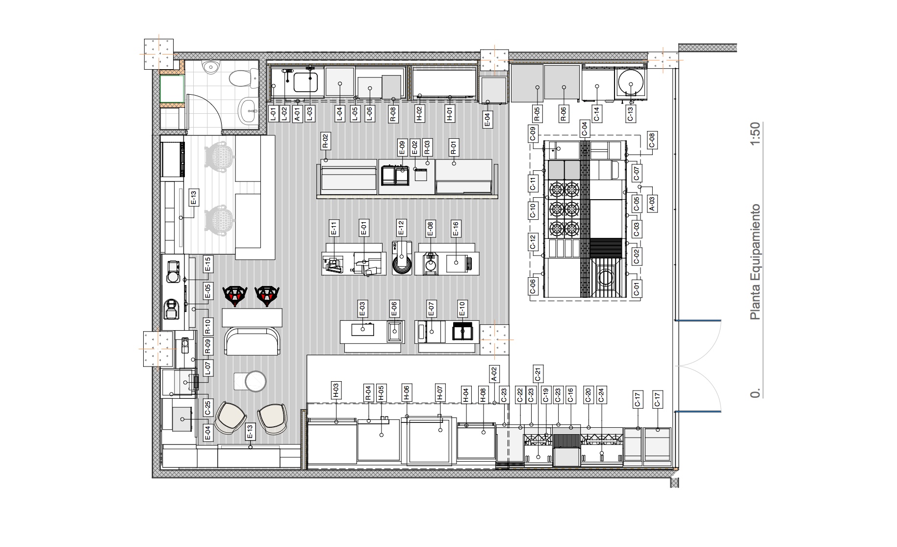
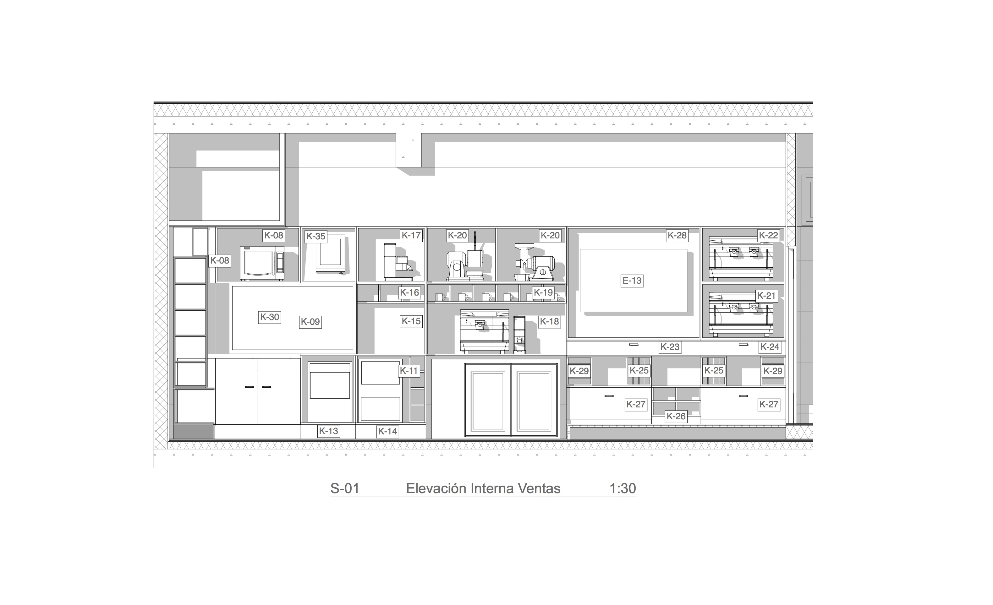
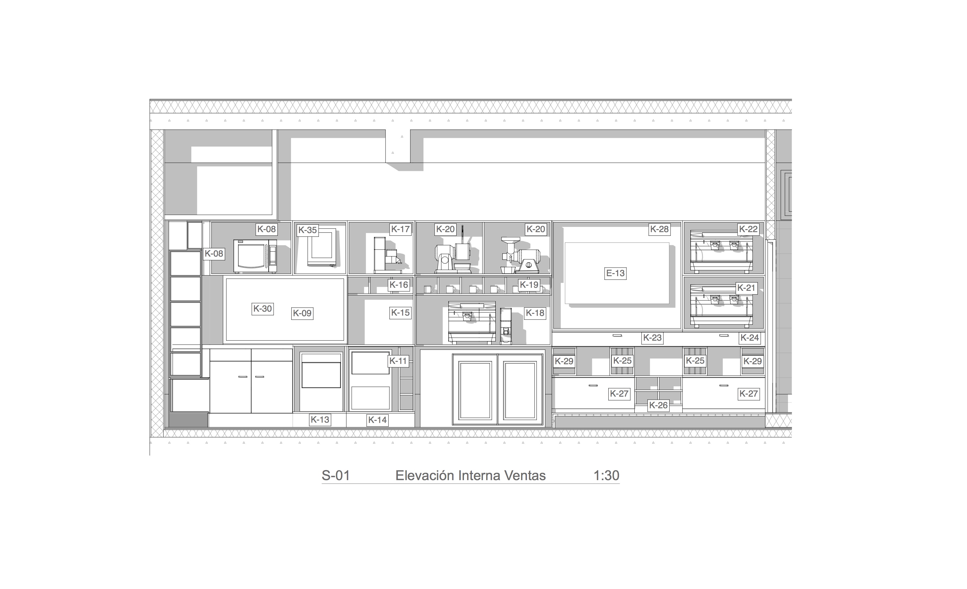
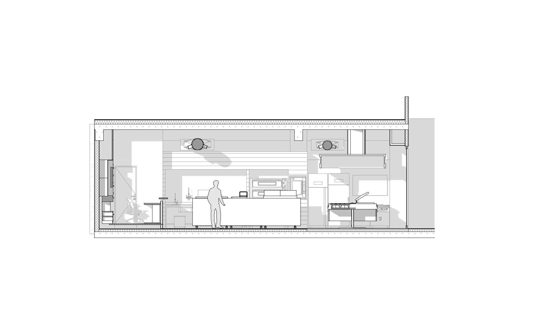
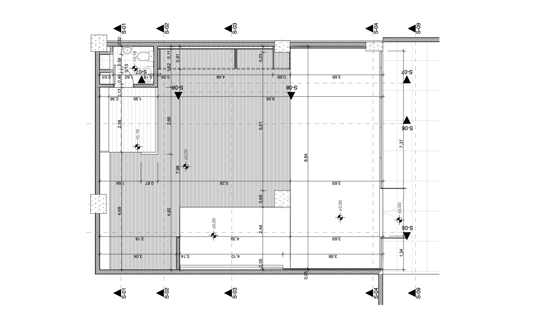
Nuestra propuesta espacial entiende el Concepto 360 y lo aplica creando un espacio global, sin divisiones, versátil, con ámbitos definidos para cada una de los aspectos de la oferta comercial, pero aún así flexible ya que permite el constante cambio de productos a exhibir.
La atención en Venta y Post-Venta son temas perfectamente manejados por TotalChef y que están cubiertos en la propuesta básica, nos planteamos ampliar el enfoque y cubrir en nuestro concepto los aspectos de Pre-Venta y Formación para ello nos valimos de la incorporación de La Experiencia, ahora los clientes podrán ver los equipos exhibidos en funcionamiento y experimentar con ellos para ayudarle a tomar la decisión de compra. El salón y el mobiliario de exhibición son Multiuso lo que permite convertir el showroom en un centro de Capacitación y Formación, donde se puede efectuarán la Presentación de Enventos de Difusión de Información y Conocimiento al medio restaurantil venezolano.
La multiplicidad del uso demandó solventar barreras financieras y técnicas para su correcta ejecución y puesta en marcha, logramos Sistemas de Extracción, Aires Acondicionados, Inyección de Aire Fresco, Sistema de Iluminación, Sistema Eléctrico de alta potencia, Sistema de Cámaras, Redes, Monitores de Video, Audio y todo lo necesario para el funcionamiento de los equipos y para realizar un evento de difusión y formación. Hablamos de Tecnología en Gastronomía aplicada al espacio comercial de TotalChef, otro proyecto que nos enorgullece presentar.






[wpforms id=”12237″]