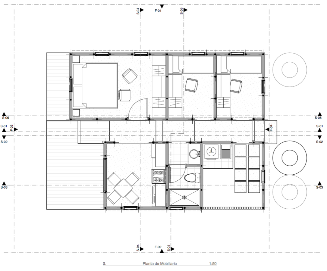
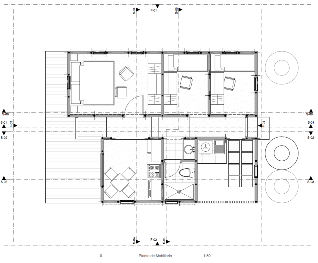
Segunda semana del interesante proceso de creación de la Vivienda Barrial Productiva, Este es el punto del proceso en el que se concretan las ideas, donde se pasa del boceto y el esquema a planos técnicos, el punto en el que todos los análisis funcionales, morfológicos, sociales y conceptuales se amalgaman y convierten en un modelo virtual para su construcción.
Plantas, Cortes, Fachadas y vistas 3d son los documentos de esta fase que se completó con una emocionante asamblea con la comunidad en la que se comunicó de manera pública todas y cada una de las 15 propuestas y cada familia recibió el producto final del proceso de diseño, dando paso a la siguiente fase mucho más técnica, dedicada al proceso constructivo, a sus documentos, la planificación y logística requerida.






[wpforms id=”12237″]