
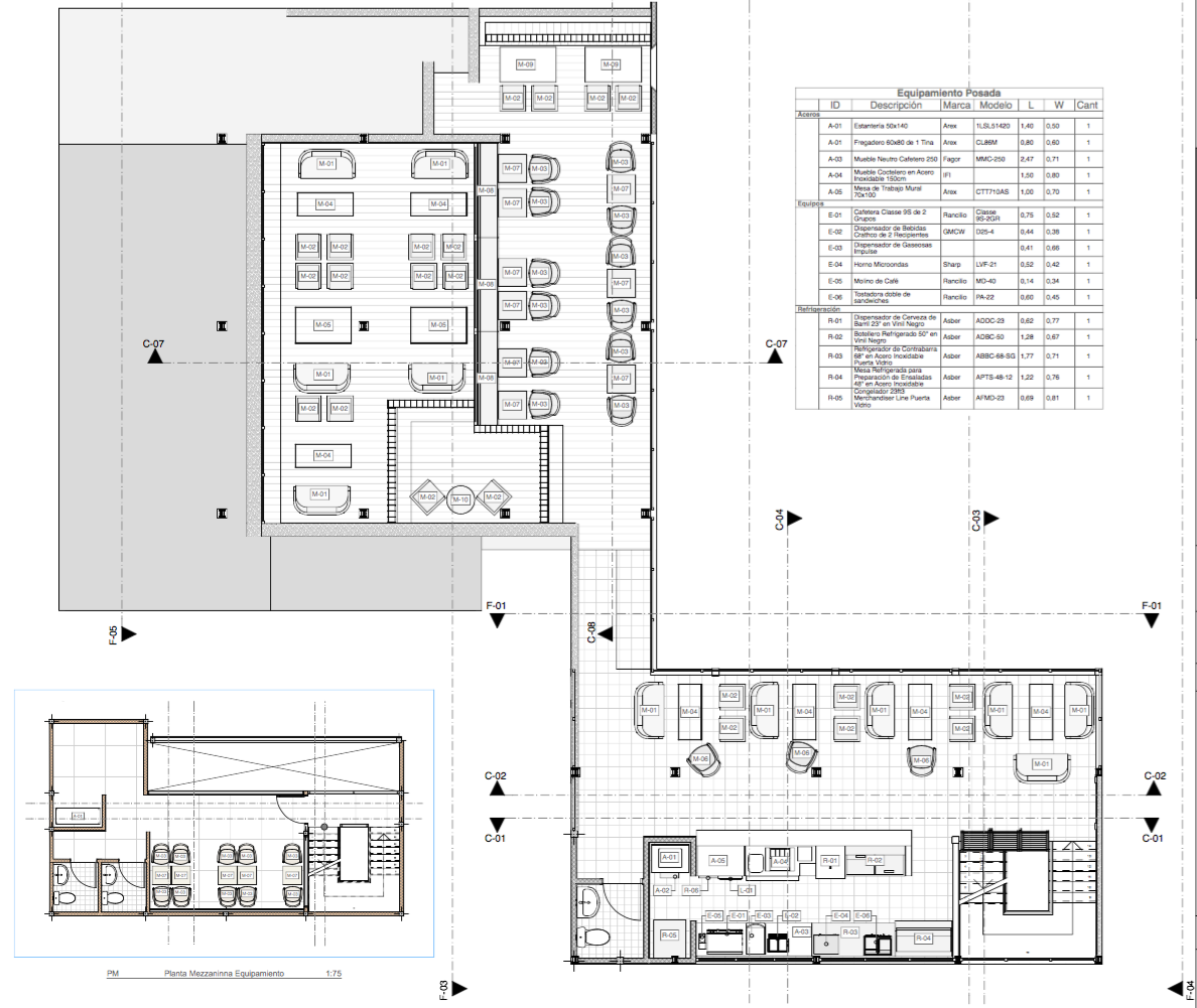
Ramo: Bar - Bistró
Area: 300 ㎡
Capacidad: 80 Comensales
Servicio: Arquitectura - Interiorismo - Equipamiento
Proyecto para Bar Restaurant Ubicado en la azotea de Cala, posada ejecutiva en la urb. Nueva Segovia al este de la ciudad de Barquisimeto. Se nos asignó la tarea de apropiarnos del techo de la posada para desarrollar un espacio de esparcimiento y encuentro de los huéspedes de la posada.
El análisis espacial, el análisis del mercado local y el estudio financiero nos indicó que la propuesta debía ser más ambiciosa de lo solicitado inicialmente y que esta debía pasar de ser un servicio para huéspedes a un negocio altamente rentable que sirva también al consumidor externo a la posada. El proyecto de Posada demanda mejorar la propuesta de valor para el huésped, para el cliente propietario de la posada así como para la ciudad, el mercado local.
Constructivamente resultó imperativo el uso de una estructura liviana para lo cual nos valimos del uso de múltiples módulos del Kit de estructura de Madera que creamos para este tipo de espacios. En el CoffeeSketch #7 Hicimos la adaptación para este caso modificando algunas piezas, la variación del tipo de lona y el uso de Madera de Teca que nos brinda mayor resistencia a la intemperie así como un acabado de primera.
Creamos entonces un punto de encuentro en la ciudad para propios y visitantes, seguro, que disfruta de agradables vistas, en un espacio bajo una cubierta liviana de lonas, pérgolas y un gran Apamate, un espacio que aun estando protegido del sol y la lluvia mantiene la agrdable sensación de estar al aire libre.






[wpforms id=”12237″]